INVESTOR DESIGNS
Maximise Your Return on Investment
Affordable & Hard Wearing
Our range of Investor Granny Flats are guaranteed to maximise your property’s potential.
Our investor packages provide a turn key solution from design, approvals through to completion.
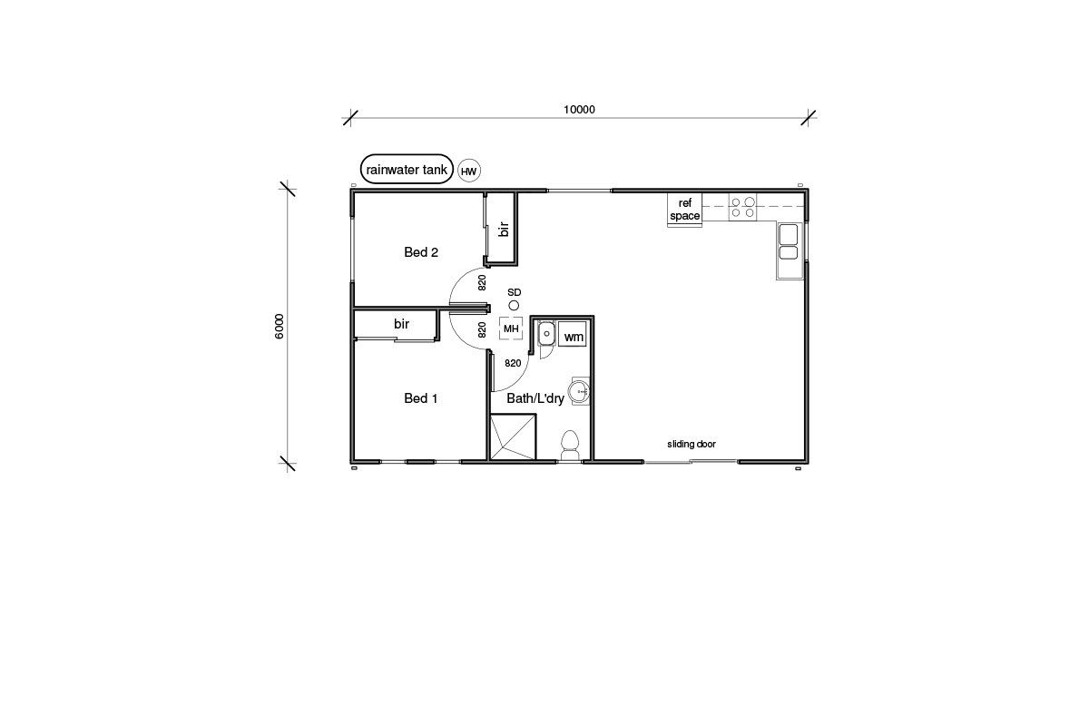
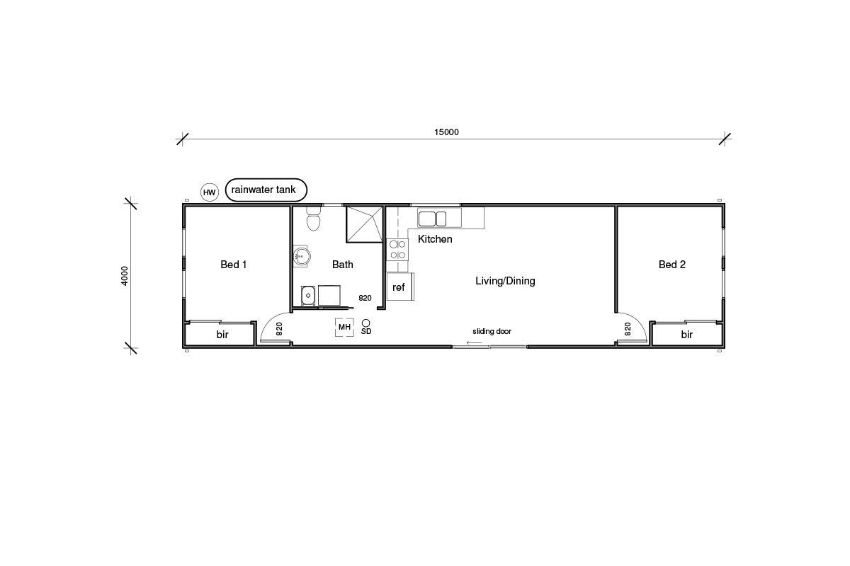
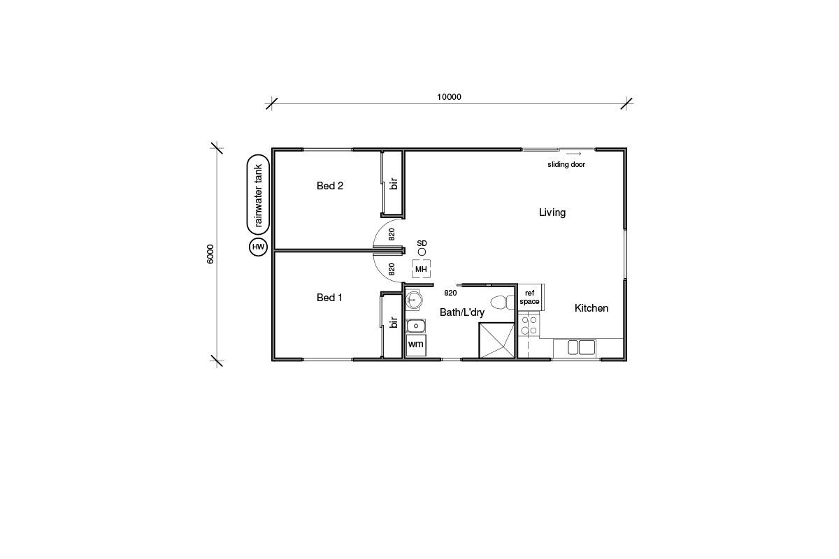
These designs are available in several layouts, shapes and sizes, from 20sqm studios to 60sqm Granny Flats.
No Hidden Costs
The Granny Flat Company philosophy is to provide you with a full package so that you can budget appropriately and have a stress free building experience.
We have a core focus on quality; that’s why our designs are built with long lasting materials.
As a family owned and operated business we are invested in providing full disclosure of all costs.
FAMILY OWNED
As a family business we are invested in your project at every step of the way.
MANY YEARS OF EXPERIENCE
Utilise our experience as builders
With years of design, building and investment experience we can align your project to your needs.
QUALITY
High-quality materials and construction at an affordable price.



















